T3 com 3 Frentes e Potencial Único para Remodelação Moderna

265 000€

  • 4
  • 3
  • 2
  • Útil: 90m2
  • Bruta: 97m2
  • C.E.: E
  • Ano: 1987
  • Orientação Solar: Nascente, Poente
  • Ref: 67087-COMP60690

Localização

Lisboa, Sintra, Massamá e Monte Abraão, Centro Comercial Japão (Massamá)

Videos

Descrição

Tipologia T3 (3 quartos + sala comum +2 wc e conta também com 1 arrecadação).

Janelas em todas as frentes.

Estrutura ideal para remodelação total ao seu gosto.

Quartos com áreas generosas e possibilidade de conversão para suite.

A disposição atual permite facilmente a criação de um conceito open space entre a cozinha e a sala, ideal para quem valoriza áreas sociais amplas e modernas.

Viver aqui significa ter o privilégio de fazer quase tudo a pé, num bairro que combina o dinamismo urbano com a tranquilidade necessária para a sua família.

Proximidade ao Parque Salgueiro Maia, refúgio perfeito para passeios ao ar livre, desporto ou momentos de relaxamento em família.

A poucos minutos da Estação de Comboios de Massamá e com paragens de autocarro à porta, garante uma ligação rápida a qualquer ponto de Massamá e arredores
( Sintra / Lisboa / Amadora ).

Marque a sua visita.

Divisões

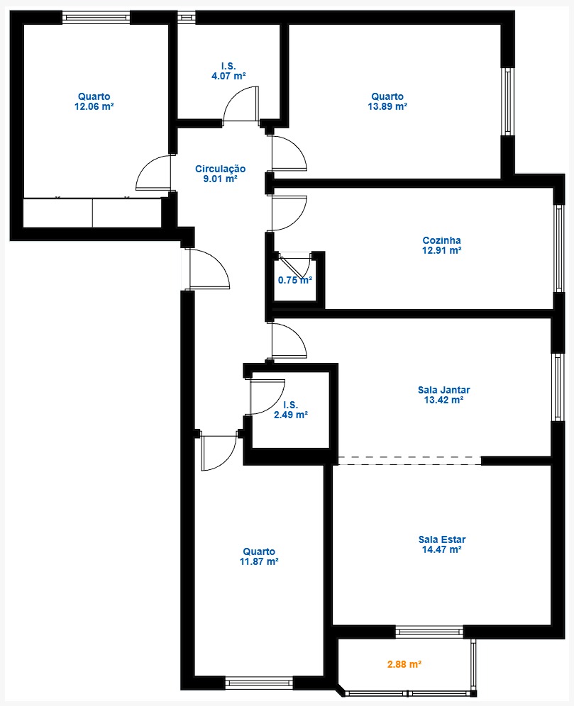
Plantas

Nome do piso: Piso 0

Divisão Área Nota
Quarto 12.06m2
Quarto 13.89m2
Quarto 11.87m2
Cozinha 12.91m2
Sala 13.42m2
WC 4.07m2
WC 2.49m2
Corredor 9.01m2
Despensa 0.75m2
Marquise 2.88m2